Commercial Architecture

Commercial Architecture

Develop a Space To Help Your Business Grow and Thrive

 
 

Our design skills lend themselves to professional practice when it comes to Commercial Architecture. From small site developments to large scale in-depth projects, we have the commercial experience to create, develop and deliver your needs with complete expertise. 

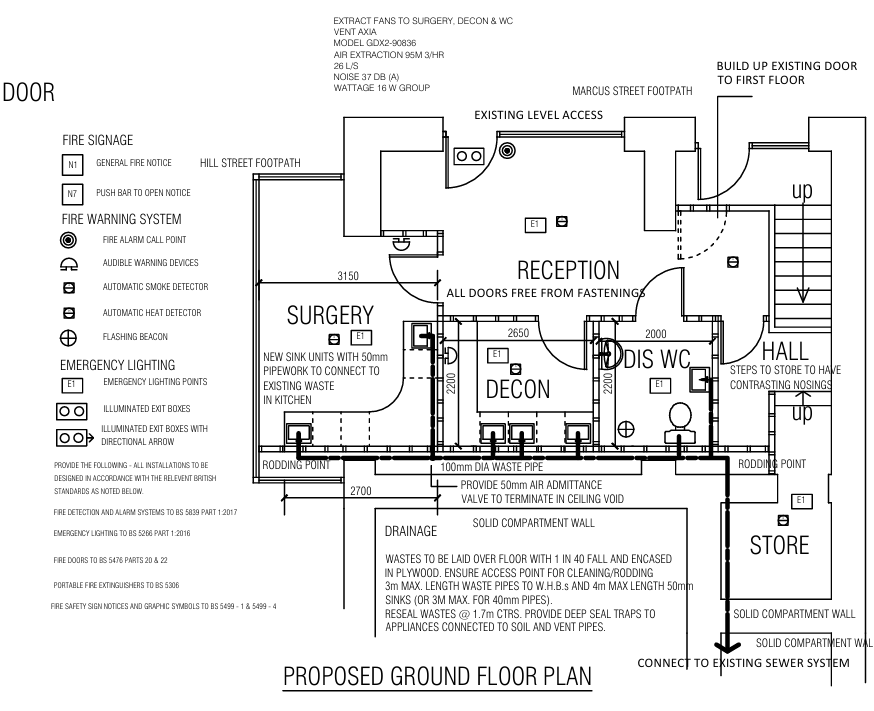
Take a look at one of our recently completed commercial projects in Newry. The ground floor plan was carefully thought out by bringing our clients ideas and our own ideas together. The plan was created with the patients at the forefront of the Clients mind.

HAVE A PROJECT YOU WANT TO DISCUSS? Find out more about our Commercial ServiceS

BOOK YOUR CONSULTATION
 

SOME OF OUR RECENT COMMERCIAL PROJECTS

Cathedral Quarter Dental, Newry, 2023

The owner of Cathedral Quarter Dental came Tumilty Design with a vision in mind, to change an old charity shop into an up to date dental practice in the heart of Newry City.

By amalgamating the Clients thoughts and our design experience, we came up with a modern space that suited the dental practices’ vision. We maximised the potential of the cramped building to gain a modern dental practice.

 
 
 

At Tumilty Design, we specialise in delivering innovative and sustainable architecture solutions for commercial spaces.

We use a client-centered approach to think up a design for your business, community building, sports club building and all commercial retail and industrial buildings.

 
 

using more space and opening upstairs

When the owner returned to our Office, in 2024, he intended to open the first floor area of the building practice upstairs in order to construct another surgery room. We again put our thoughts together and generated another surgery for the practice.

 
VIEW MORE OF OUR PROJECTS
 

start building your commercial space

At Tumilty Design, we excel in crafting architectural solutions that not only meet but exceed the dynamic needs of modern businesses. With over 30 years experience in the commercial architecture sector, our team combines creativity, functionality and sustainability to create spaces that performs the way the client wants it to.

Growing your commercial space can boost productivity, employee satisfaction and overall sales.